Área do Cliente
|
Acesse pelo celular

ALUGAR CASA COMERCIAL COM 7 SALAS NO ALTO DA BOA VISTA EM RIBEIRÃO PRETO

Comercial Casa - Alto da Boa Vista Comercial para Locação em Ribeirão Preto

|
Compartilhe:

DISPONÍVEL

Imóvel disponível. Contate-nos pessoalmente para visita-lo


Aluguel

IPTU
359,24
Comercial
Finalidade
4621
Referência
3
Banheiros
2
Garagens
372.00 m²
A. Construída
227.92 m²
A. Útil
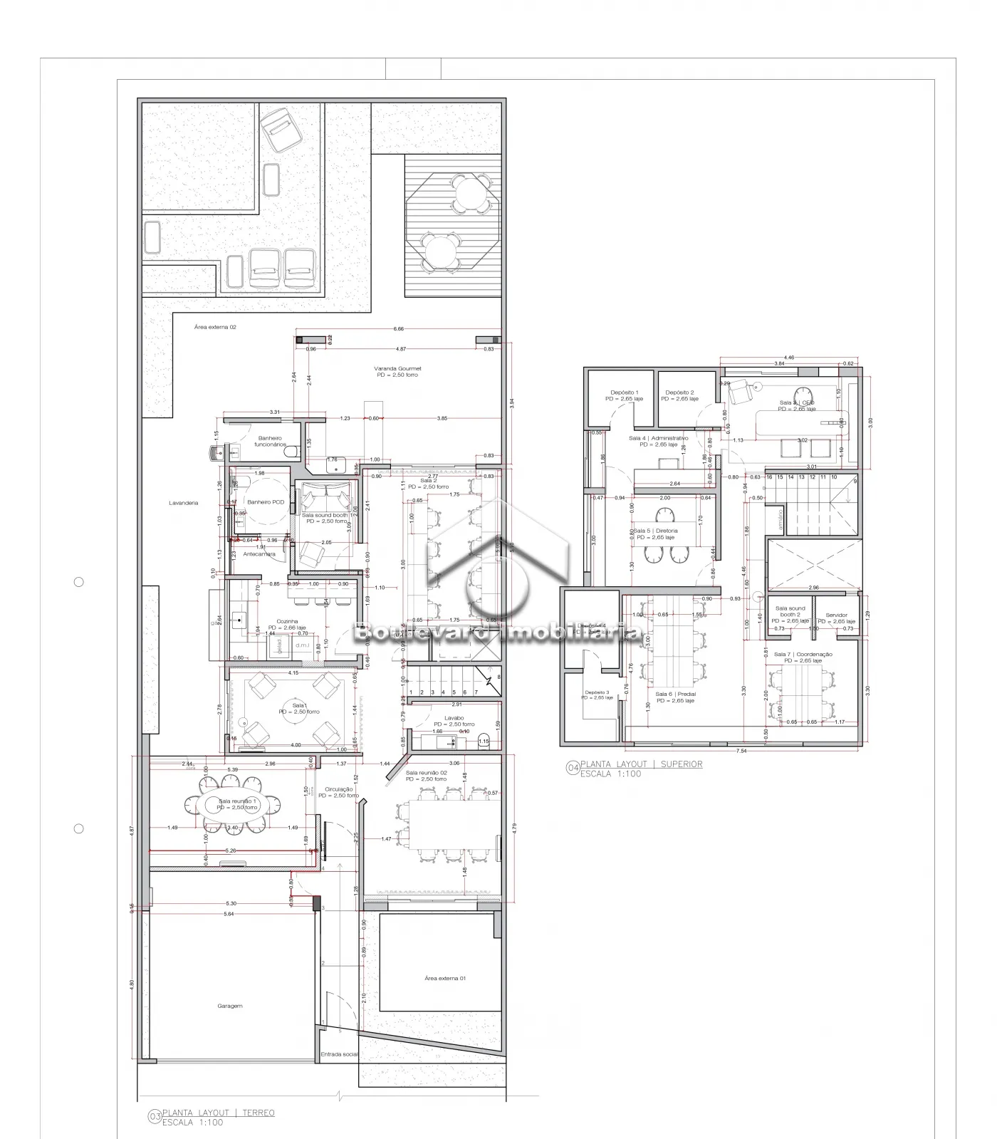
Descrição do Imóvel

Casa Comercial para Alugar no Alto da Boa Vista em Ribeirão Preto, SP

Imóvel com 227,92 m² de área útil, ideal para instalação de clínicas, consultórios, escritórios de advocacia, empresas de tecnologia, escolas de idiomas, estúdios ou espaços de coworking. Excelente distribuição interna, ambientes funcionais e localização estratégica.

Características do imóvel:

Piso térreo:
- 2 Salas de reunião;
- 2 Salas de espera;
- Cozinha;
- Lavabo;
- Banheiro para funcionários;
- Banheiro adaptado (PCD);
- Área de serviço;
- Varanda gourmet;
- 2 Vagas de garagem.

Piso superior:
- 5 Salas privativas;
- 4 Depósitos (ideais para arquivos ou materiais de apoio);
- Sala de espera;
- Sala para servidores/equipamentos.

Localização privilegiada:
O Alto da Boa Vista está localizado na zona sul de Ribeirão Preto, uma das regiões mais valorizadas da cidade, com fácil acesso a comércios, serviços e áreas verdes.

- Próximo ao Ribeirão Shopping, Shopping Iguatemi e ao Novo Mercadão da Cidade;
- A poucos minutos do Hospital Unimed e de instituições renomadas como FATESA, UNIP, FAAP e Liceu Albert Sabin;
- Fácil acesso à Praça da Bicicleta, Parque Olhos d?Água e Parque das Artes;
- Acesso rápido às Avenidas Luiz Eduardo Toledo Prado, Braz Olaia Acosta, Presidente Vargas, João Fiúsa e Ângelo Gennaro Gallo.

Não perca essa excelente oportunidade de instalar seu negócio em uma casa comercial de alto padrão, em um dos melhores bairros de Ribeirão Preto, São Paulo.
Agende já sua visita com a Boulevard Imobiliária!

Itens do Imóvel

Ar Condicionado
Banheiro Privativo
Cozinha
Dormitórios : 15
Garagem
Iluminação

Conheça um pouco mais sobre o bairro: Alto da Boa Vista

Alto da Boa Vista: Tradição e Qualidade de Vida em Ribeirão Preto, SP
O bairro Alto da Boa Vista é uma das áreas mais valorizadas e requisitadas de Ribeirão Preto, reconhecido por sua tranquilidade, segurança e infraestrutura de alto padrão. Localizado estrategicamente na zona sul, o bairro é de fácil acesso por meio das principais avenidas da cidade, garantindo conveniência e conectividade com outras regiões.
 Infraestrutura e Comodidade
Alto da Boa Vista é um bairro que alia tranquilidade e praticidade. Com ruas arborizadas e paisagens naturais, é um local ideal para quem busca qualidade de vida e proximidade de serviços essenciais. O bairro conta com supermercados, farmácias, escolas e comércio local, além de estar próximo a grandes centros comerciais e de lazer, como o Ribeirão Shopping e o Shopping Iguatemi. A área oferece uma excelente infraestrutura para famílias e investidores, com residências amplas e espaçosas, incluindo condomínios fechados.
 Lazer e Atividades ao Ar Livre
O bairro é conhecido por suas áreas verdes e paisagens naturais, proporcionando aos moradores um ambiente ideal para atividades ao ar livre e momentos de lazer. As ruas arborizadas e as áreas preservadas formam um cenário perfeito para caminhadas e passeios em família. A proximidade de parques, como Parque das Artes e praças adiciona ainda mais valor ao bairro, oferecendo opções de lazer tranquilas e agradáveis.
 Localização Estratégica
Com uma localização privilegiada, Alto da Boa Vista é uma área nobre e bastante procurada por aqueles que buscam viver com conforto e segurança. A fácil conectividade com as principais vias da cidade e sua proximidade com centros comerciais e de lazer tornam o bairro uma opção atrativa tanto para quem deseja residir quanto para quem procura um bom investimento.
O bairro Alto da Boa Vista oferece uma qualidade de vida incomparável, sendo ideal para famílias que desejam viver em um ambiente tranquilo, seguro e com excelente infraestrutura. Se você está buscando um lugar para morar ou investir, este é o local ideal para você!
Agende sua visita com a Boulevard Imobiliária e descubra tudo o que o Alto da Boa Vista tem a oferecer.
Entre em contato com a Boulevard Imobiliária pelo telefone (16) 3516-7767 ou pelo WhatsApp (16) 98153-1209.

Vídeo do Imóvel

Panorâmica

Localização Comercial / Casa em Ribeirão Preto

DISPONÍVEL

Imóvel disponível. Contate-nos pessoalmente para visita-lo



Aluguel

IPTU
359,24

Total / Mês
18.359,24

DÚVIDAS SOBRE O IMÓVEL
PREENCHA O FORMULÁRIO


Concordo com os Termos e Privacidade
Imóveis Similares